Lord's Son
Location:
Goa
Date:
2024
Type:
Semi Residential Building
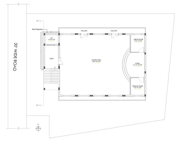
This G+3 semi-residential project in Goa is a thoughtfully designed space catering to both spiritual and residential needs. Developed for a pastor, the building features a dedicated church on the first floor, providing a welcoming space for prayer and community gatherings. The second and third floors are designed as a comfortable family residence, ensuring privacy and modern amenities for daily living.
Located in the serene yet accessible surroundings of Goa, the project offers a peaceful environment ideal for worship and residence. The architecture blends functionality with aesthetics, featuring well-ventilated interiors, spacious living areas, and high-quality finishes. Whether for worshippers or the residing family, this building serves as a perfect sanctuary for faith and modern living in one harmonious space.








